Compra directa al promotor. Con el estilo de construcción tradicional del Valle d´Aran
VIVIENDA DE PRIMERA CALIDAD
Esta vivienda de nueva construcción, ubicada en el centro de Salardú, dispone de cuatro plantas, ascensor, garaje privado y bodega.
La casa mantiene el estilo de construcción tradicional del Valle d´Aran, con materiales tradicionales y acabados de primera calidad.
Planos de la Vivienda

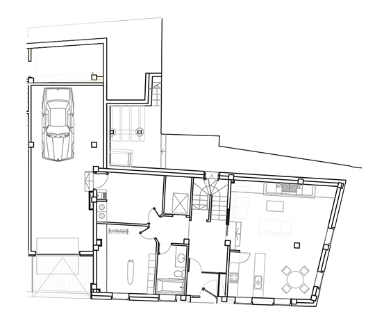
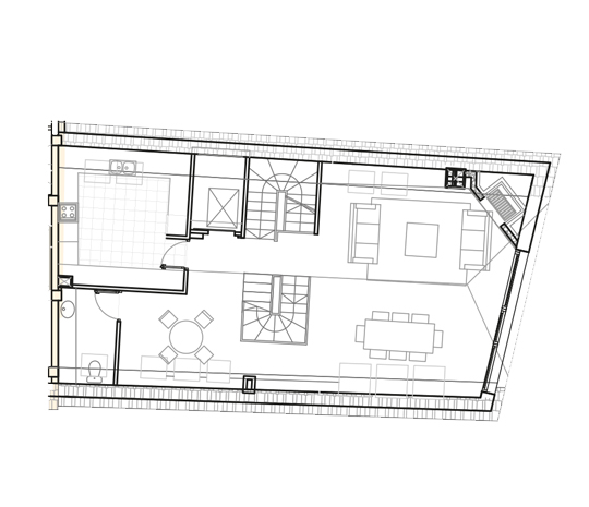
Salón comedor con chimenea y cocina americana, cuarto de plancha, guarda esquís, cuarto de baño completo y bodega.
Planta baja
- Superficie construida: 126 m2
-
Ubicación
Centro de Salardú
-
Habitaciones
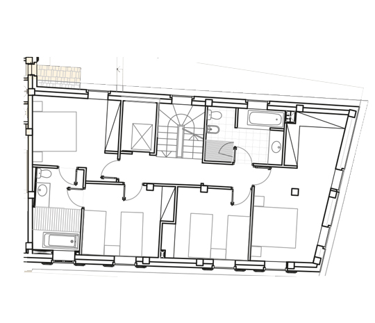
5 Dobles
-
Superficie construida
392 m²
-
Baños completos
4 + 1 aseo
-
Garaje
Garaje privado




